.jpg&w=3840&q=75)
Appartement Details
Duplex 1.6Duplex appartement over twee verdiepingen met groot terras.
Volwaardige woning
Beschikbaar
€379,900
3
Slaapkamers
1
Badkamer
149.85m²
Oppervlakte
20.25m²
Balkon
Afbeeldingen & Plannen
Bekijk alle beschikbare afbeeldingen, plattegronden en situering
.jpg&w=3840&q=75)
Foto
1 / 10
Beschrijving
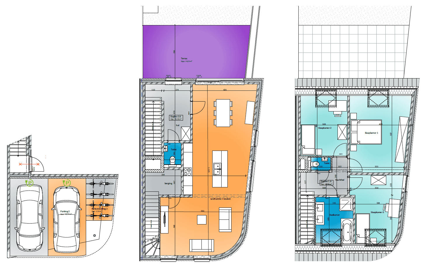
Duplex 1.6 bevindt zich op de 1ste en 2de verdieping van het 3-gevel gebouw. Dit duplex appartement beschikt over een inkomhal met toilet, een ruime leefruimte met open keuken en aangrenzende berging. De leefruimte geeft uit op een ruim terras. Via de interne trap bereikt u de bovenverdieping waar zich 3 slaapkamers en een badkamer bevinden.
Kenmerken & Voorzieningen
Duplex appartement (149,85m²)
Terras (20,25m²)
Volwaardige woning
Twee volwaardige verdiepingen + zolder
3 slaapkamers
Badkamer en apart toilet
Ruime leefruimte met open keuken
Praktische berging
Interne trap
Lift toegang
Videofoon en toegangscontrole
Dubbele beglazing
Energiezuinig
Optimale lichtinval
Garage (€25.000)
Plattegrond & Technische Tekeningen
Verdieping 1
Oppervlakte: 149.85m² + 20.25m² terras
€379,900
Alle technische tekeningen en plattegronden zijn beschikbaar voor download. De officiële plattegrond toont de exacte indeling en afmetingen van dit appartement.
Interesse in dit appartement?
Neem contact met ons op voor meer informatie of om een bezichtiging in te plannen.
Snel Overzicht
Type:appartement
Verdieping:Verdieping 1
Oppervlakte:149.85m²
Balkon::20.25m²
Slaapkamers:3
Badkamers:1
Oplevering:Bij oplevering