.jpg&w=3840&q=75)
Appartement Details
Appartement 0.1Gelijkvloers appartement met groot terras en directe tuintoegang.
Beschikbaar
€334,900
2
Slaapkamers
1
Badkamer
102.73m²
Oppervlakte
14.5m²
Terras
Afbeeldingen & Plannen
Bekijk alle beschikbare afbeeldingen, plattegronden en situering
.jpg&w=3840&q=75)
Foto
1 / 8
Beschrijving
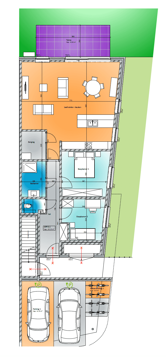
Het appartement 0.1 bevindt zich op het gelijkvloers in het 3-gevel gebouw. Dit appartement beschikt over een persoonlijk toilet, 2 slaapkamers, badkamer en een ruime leefruimte met open keuken en berging. Vanuit de leefruimte is er toegang tot het terras.
Kenmerken & Voorzieningen
Gelijkvloers appartement (102,73m²)
Groot terras (14,50m²)
Directe tuintoegang
2 slaapkamers
Badkamer en apart toilet
Ruime leefruimte met open keuken
Praktische berging
Lift en traphal toegang
Videofoon en toegangscontrole
Dubbele beglazing
Energiezuinig
Optimale lichtinval
Plattegrond & Technische Tekeningen
Verdieping (Gelijkvloers)
Oppervlakte: 102.73m² + 14.5m² terras
€334,900
Alle technische tekeningen en plattegronden zijn beschikbaar voor download. De officiële plattegrond toont de exacte indeling en afmetingen van dit appartement.
Interesse in dit appartement?
Neem contact met ons op voor meer informatie of om een bezichtiging in te plannen.
Snel Overzicht
Type:appartement
Verdieping:Gelijkvloers
Oppervlakte:102.73m²
Terras::14.5m²
Slaapkamers:2
Badkamers:1
Oplevering:Bij oplevering