.jpg&w=3840&q=75)
Appartement Details
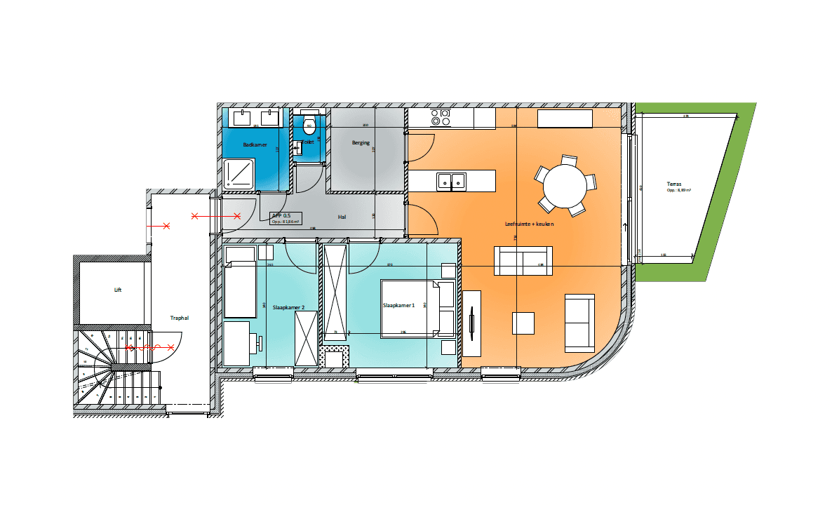
Appartement 0.5Gelijkvloers hoekapppartement met terras.
Beschikbaar
€289,900
2
Slaapkamers
1
Badkamer
81.86m²
Oppervlakte
8.89m²
Terras
Afbeeldingen & Plannen
Bekijk alle beschikbare afbeeldingen, plattegronden en situering
.jpg&w=3840&q=75)
Foto
1 / 9
Beschrijving
Appartement 0.5 bevindt zich op het gelijkvloers van het 4-gevel gebouw in hoekligging. Dit appartement beschikt over een inkomhal met toilet, 2 slaapkamers, badkamer en een ruime leefruimte met open keuken en berging. Vanuit de leefruimte is er toegang tot het terras.
Kenmerken & Voorzieningen
Gelijkvloers appartement (81,86m²)
Terras (8,89m²)
Hoekligging
2 slaapkamers
Badkamer en apart toilet
Ruime leefruimte met open keuken
Praktische berging
Lift en traphal toegang
Videofoon en toegangscontrole
Dubbele beglazing
Energiezuinig
Optimale lichtinval
Plattegrond & Technische Tekeningen
Verdieping (Gelijkvloers)
Oppervlakte: 81.86m² + 8.89m² terras
€289,900
Alle technische tekeningen en plattegronden zijn beschikbaar voor download. De officiële plattegrond toont de exacte indeling en afmetingen van dit appartement.
Interesse in dit appartement?
Neem contact met ons op voor meer informatie of om een bezichtiging in te plannen.
Snel Overzicht
Type:appartement
Verdieping:Gelijkvloers
Oppervlakte:81.86m²
Terras::8.89m²
Slaapkamers:2
Badkamers:1
Oplevering:Bij oplevering